L'Agence de Rang-du-Fliers Agence
Vendu

Maison 5 pièce(s) 3 chambre(s) 83.84 m²

Verton (62180)
127 200 € Référence 131302

A propos de ce bien

Trop tard : nous avons trouvé un acquéreur pour ce bien !


Des travaux à prévoir, mais un gros potentiel pour cette maison individuelle située à VERTON en EXCLUSIVITÉ

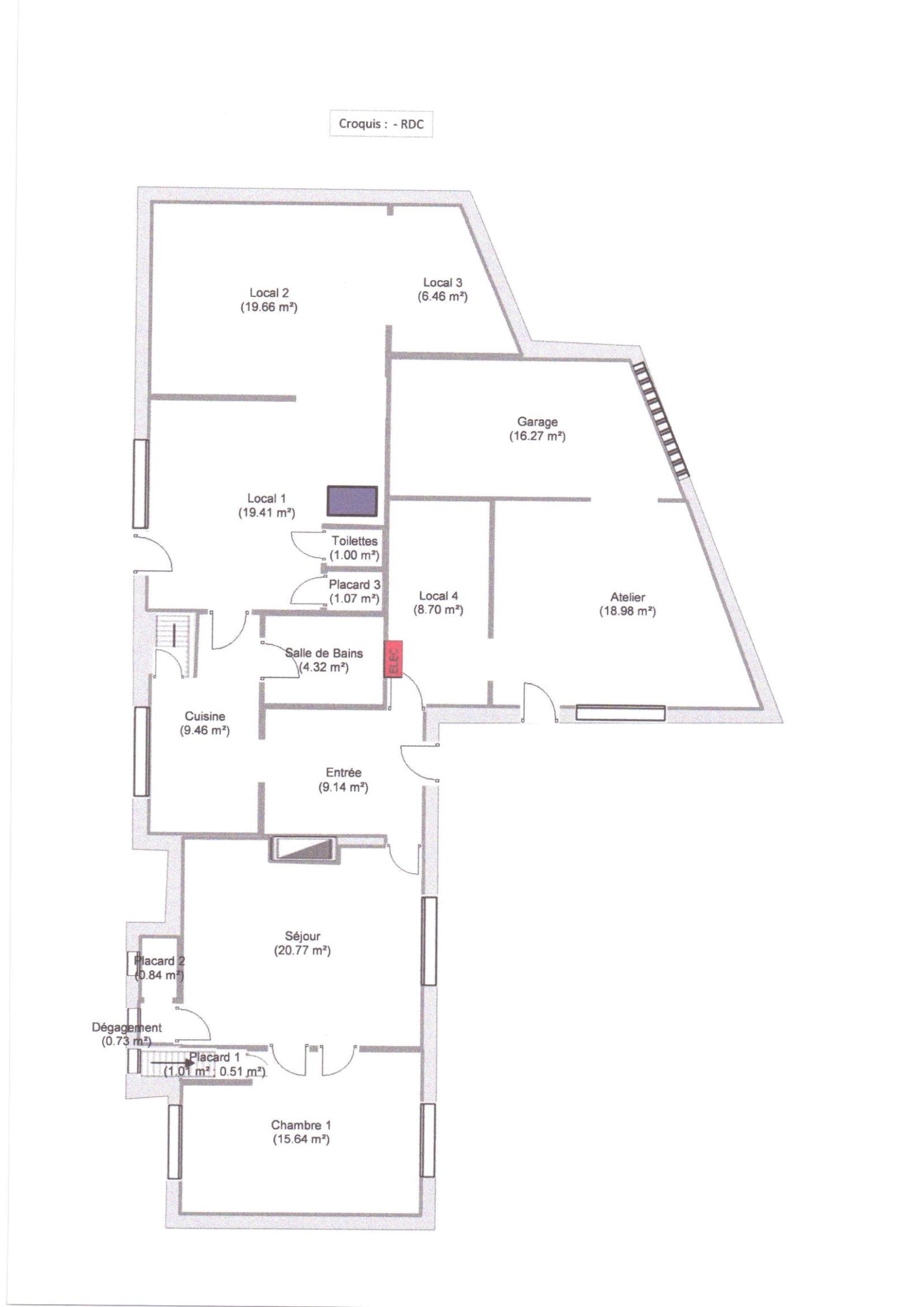
Elle dispose actuellement de 3 chambres, d'une cave, d'un garage, d'un atelier et de dépendances, le tout sur environ 800m²

Elle est équipée du chauffage au fuel et du tout à l'égout

Les informations sur les risques auxquels ce bien est exposé sont disponibles sur le site Géorisques : www.georisques.gouv.fr.

Prix : 127.200€
Honoraires charge vendeur
DPE réalisé le 31 mai 2024

L'Agence de Rang du Fliers, membre du réseau AICO : 1 mandat exclusif = 8 agences à votre service

Caractéristiques de ce bien

  • Surface 83,84 m²
  • carrez 83,84 m²
  • terrain 843 m²
  • séjour 20,77 m²
  • 3 chambre(s)
  • 1 salle(s) de bain
  • construit en 1930
  • cuisine séparée
  • Chauffage individuel : radiateur (fioul)
  • 1 garage(s)
  • 2 niveau(x)
  • terrasse
  • arboré

Diagnostics énergétiques

Consommation énergétique
A B C D E F G
Emission de gaz à effet de serre
A B C D E F G

Logement à consommation énergétique excessive : classe G

Montant estimé des dépenses annuelles d'énergie de ce logement pour un usage standard est compris entre 2 200 € et 2 976 € . 2021 étant l'année de référence des prix de l'énergie utilisés pour établir cette estimation.

Informations financières

Prix de vente 127 200 € Les honoraires d'agence seront intégralement à la charge du vendeur
Taxe foncière annuelle 1 191 €

Calcul des mensualités

* Champs obligatoires