L'Agence de Rang-du-Fliers Agence
Vendu

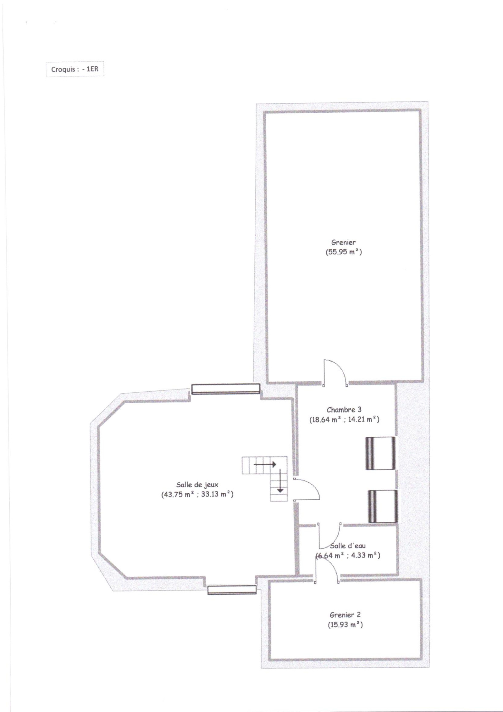
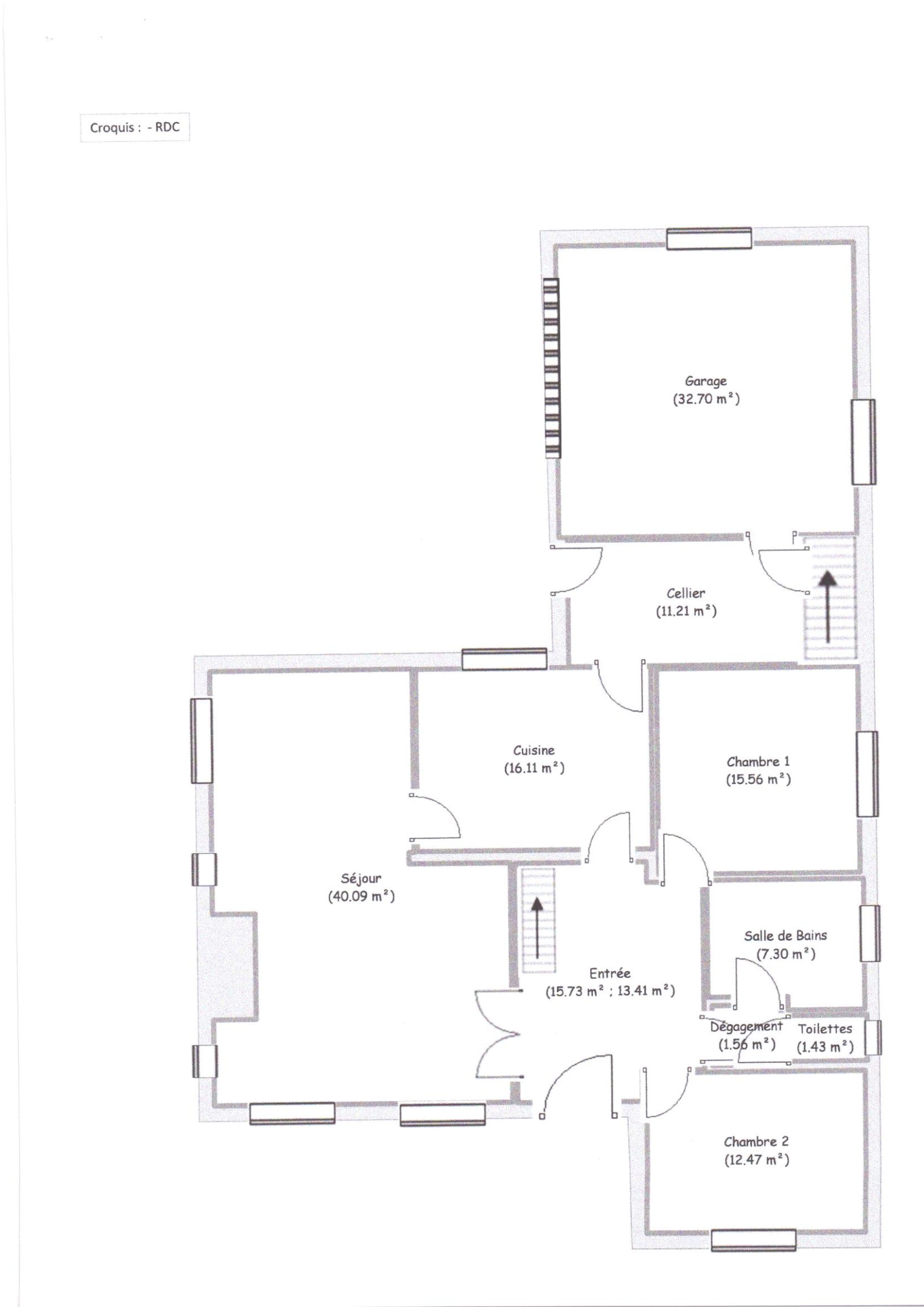
Maison 6 pièce(s) 3 chambre(s) 170 m²

Verton (62180)
399 000 € Référence 131328

A propos de ce bien

Trop tard : nous avons trouvé un acquéreur pour ce bien

Grand pavillon individuel des années 80 à Verton, proche de Berck !

Vous cherchez de l'espace ? Cette maison de 170 m² sur un terrain de 8420 m² est faite pour vous ! Avec un séjour de 40m² avec cheminée, une cuisine séparée équipée de 16m², 3 grandes chambres, 2 salles d'eau, un grenier immense, une salle de jeux spacieuse, un grand garage, et des dépendances, il y a de quoi satisfaire toute la famille (et même les amis envahissants) !

Ne tardez pas, c'est une opportunité unique pour les amateurs de grands espaces !

Les informations sur les risques auxquels ce bien est exposé sont disponibles sur le site géorisques : www.georisques.gouv.fr

AICO (Agences Immobilières en Côte d'Opale) : 1 mandat exclusif = 7 agences à votre service

Caractéristiques de ce bien

  • Surface 170 m²
  • carrez 170,81 m²
  • terrain 8 420 m²
  • séjour 40,09 m²
  • 3 chambre(s)
  • 2 salle(s) de bain
  • construit en 1980
  • cuisine séparée (équipée)
  • Chauffage individuel : radiateur (electrique)
  • 1 garage(s)
  • 2 niveau(x)
  • arboré

Diagnostics énergétiques

Consommation énergétique
A B C D E F G
Emission de gaz à effet de serre
A B C D E F G

Montant estimé des dépenses annuelles d'énergie pour un usage standard est compris entre 2 857 € et 3 865 € . Prix moyens des énergies indexés sur les années 2021, 2022 et 2023 (abonnements compris).

Informations financières

Prix de vente honoraires TTC inclus 399 000 €
Taxe foncière annuelle 2 500 €

Calcul des mensualités

* Champs obligatoires