L'Agence de Rang-du-Fliers Agence
Télécharger la fiche

Appartement 7 pièce(s) 3 chambre(s) 89.18 m²

Berck (62600)
189 000 € Référence 131317

A propos de ce bien

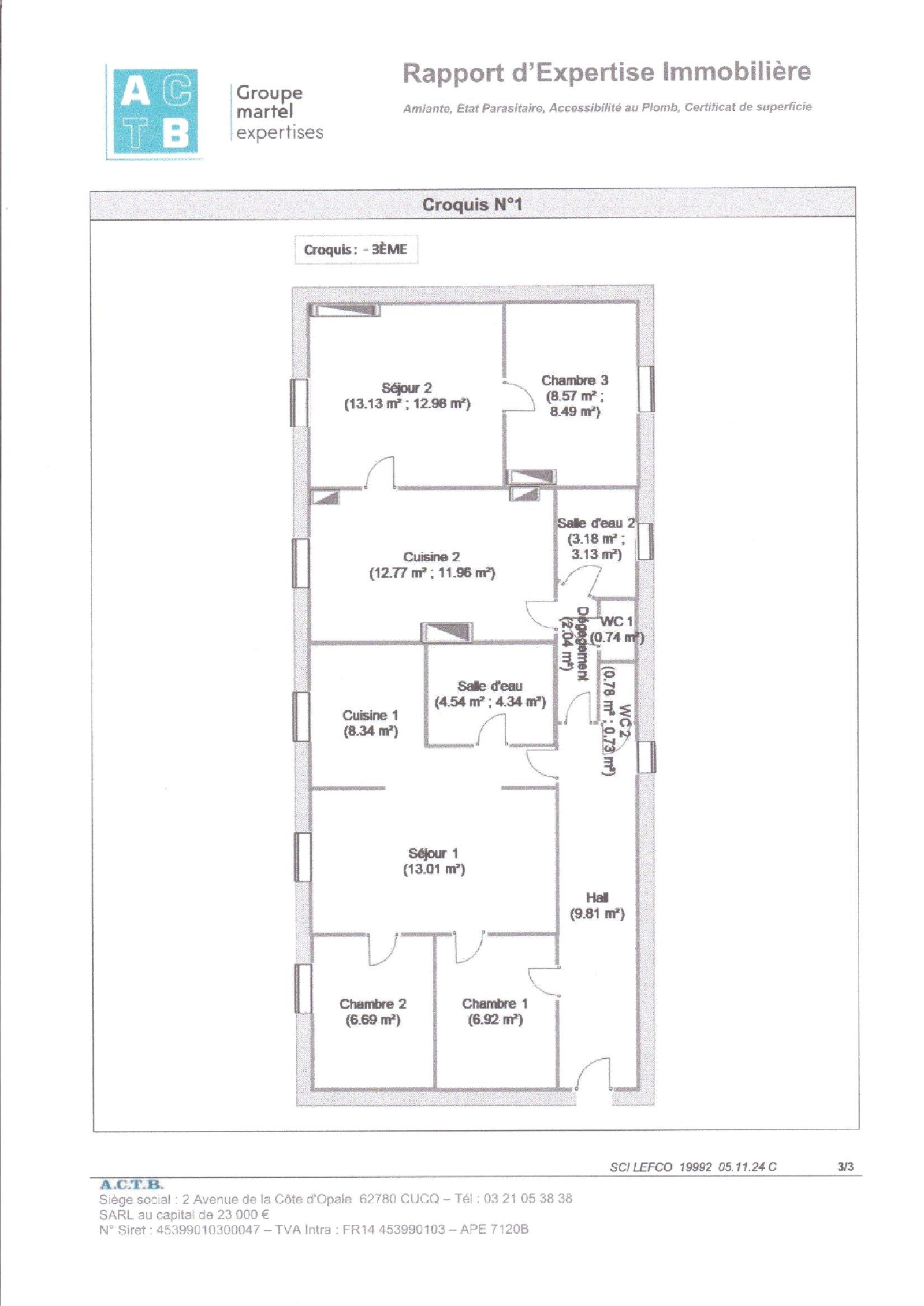
Nous vous proposons à l'achat en plein coeur des commerces de BERCK PLAGE, cet appartement situé au 3ième étage d'une petite copropriété.

D'une superficie initiale d'environ 90m², il est actuellement divisé en 2 logements dont loué en location meublée (bail court).

Après travaux, vous aurez la possiblité de louer les 2 appartements ou de profiter d'un grande surface à proximité de la plage


Les informations sur les risques auxquels ce bien est exposé sont disponibles sur le site Géorisques : www.georisques.gouv.fr

AICO (Agences Immobilières en Côte d'Opale) : 1 mandat exclusif = 7 agences à votre service

Caractéristiques de ce bien

  • Surface 89,18 m²
  • carrez 89,18 m²
  • 3 chambre(s)
  • 2 salle(s) de bain
  • construit en 1940
  • cuisine séparée (semi-équipée)
  • Chauffage individuel : radiateur (electrique)
  • 2 côté(s) mitoyen(s)
  • 3ème étage
  • 3 étage(s)
  • vue ville

Diagnostics énergétiques

Consommation énergétique
A B C D E F G
Emission de gaz à effet de serre
A B C D E F G

Logement à consommation énergétique excessive : classe G

Montant estimé des dépenses annuelles d'énergie pour un usage standard est compris entre 3 403 € et 4 605 € . Prix moyens des énergies indexés sur les années 2021, 2022 et 2023 (abonnements compris).

Informations financières

Prix de vente 189 000 € Les honoraires d'agence seront intégralement à la charge du vendeur
Taxe foncière annuelle 1 920 €

Informations de copropriété

Copropriété Oui
Lot n° 6
Nombre de lots 11
Quote part annuelle des charges 1 675 €
Plan de sauvegarde Non
Statut du syndic Pas de procédure en cours

Calcul des mensualités

* Champs obligatoires