L'Agence de Rang-du-Fliers Agence
Télécharger la fiche
Exclusivité

Appartement 3 pièce(s) 1 chambre(s) 53.28 m²

Berck (62600)
143 000 € Référence 131352

A propos de ce bien

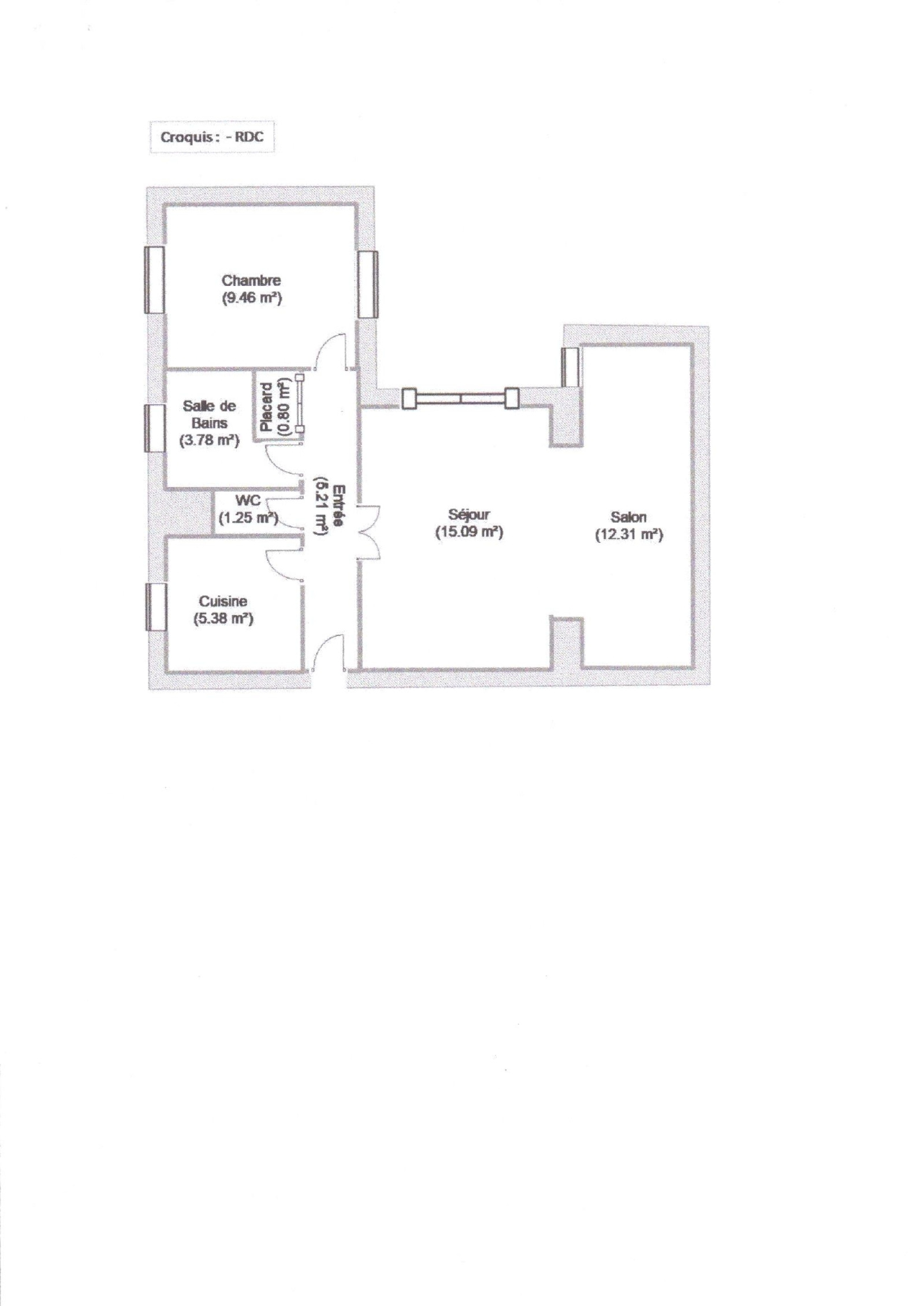
Appartement T2 en EXCLUSIVITÉ à BERCK PLAGE

Nous vous proposons à l'achat cet appartement de 53,28m².

Il nécessite certes un rafrachissement, maisl il se situe à 750 mètres de la plage, bénéficie d'une cave, d'une place de parking, et comme il se situe au rez de chaussée, d'une petite cour privée.

Il dispose d'une entrée, d'un salon, d'un séjour, d'une cuisine aménagée, d'une salle de bains avec baignoire et placard, et d'une chambre


Bien soumis au statut de la copropriété (90 lots)

Pas de procédure en cours

Charges annuelles environ 1300€uros


Caractéristiques de ce bien

  • Surface 53,28 m²
  • carrez 53,28 m²
  • séjour 27,40 m²
  • 1 chambre(s)
  • 1 salle(s) de bain
  • construit en 1950
  • cuisine séparée (semi-équipée)
  • Chauffage individuel : radiateur (electrique)
  • Chauffage individuel : radiateur (electrique)
  • 2 côté(s) mitoyen(s)
  • 1 niveau(x)
  • 5 étage(s)
  • ascenseur
  • cave
  • terrasse
  • accès handicapé

Diagnostics énergétiques

Consommation énergétique
A B C D E F G
Emission de gaz à effet de serre
A B C D E F G

Montant estimé des dépenses annuelles d'énergie pour un usage standard est compris entre 1 380 € et 1 866 € . Prix moyens des énergies indexés sur les années 2021, 2022 et 2023 (abonnements compris).

Informations financières

Prix de vente honoraires TTC inclus 143 000 €
Taxe foncière annuelle 1 396 €

Informations de copropriété

Copropriété Oui
Lot n° 204
Nombre de lots 90
Quote part annuelle des charges 1 260 €
Plan de sauvegarde Non
Statut du syndic Pas de procédure en cours

Calcul des mensualités

* Champs obligatoires